Dự án Grand SunLake là một dự án bất động sản đẳng cấp tọa lạc tại 135 đường Trần Phú, Phường Văn Quán, Quận Hà Đông, Hà Nội. Với vị trí đắc địa tại trung tâm Hà Đông, dự án hứa hẹn sẽ mang đến cho cư dân một không gian sống tối ưu và đầy đủ tiện nghi. Với quy mô gần 7.000 m2, dự án Grand SunLake được thiết kế với phong cách kiến trúc độc đáo, hiện đại và tiên tiến, tạo nên một không gian sống đẳng cấp, tối tân và đầy đủ tiện nghi.
- Dự án Grand SunLake
TỔNG QUAN
Grand SunLake một dự án bất động sản cao cấp nằm tại vị trí đắc địa số 135 đường Trần Phú, Phường Văn Quán, Quận Hà Đông, Hà Nội. Dự án được xây dựng trên khu đất rộng hơn 6.800m2, với quy mô gồm 2 toà tháp chung cư cao 35 tầng. Grand SunLake cung cấp 1.206 căn hộ cao cấp với diện tích đa dạng, từ 55m2 đến 128m2, được thiết kế theo phong cách hiện đại và tiên tiến, mang đến không gian sống đẳng cấp và tiện nghi cho cư dân.
Với vị trí trung tâm tại Quận Hà Đông, Grand SunLake là nơi thuận tiện để kết nối với các khu vực khác trong thành phố. Dự án cách trung tâm thủ đô Hà Nội chỉ khoảng 15 phút đi xe và nằm gần các tuyến đường lớn như Đường Láng, Đại lộ Thăng Long, Quốc lộ 70… Ngoài ra, khu vực này cũng có nhiều tiện ích xung quanh, bao gồm trường học, bệnh viện, siêu thị và các trung tâm thương mại lớn, đáp ứng tối đa nhu cầu của cư dân.
Grand SunLake được trang bị các tiện ích đa dạng và sang trọng, bao gồm hồ bơi tràn, phòng gym, khu vui chơi trẻ em, khu BBQ ngoài trời, khu vườn xanh mát và khu thương mại dịch vụ. Tất cả các tiện ích này được thiết kế để đáp ứng nhu cầu của cư dân và mang lại cho họ một cuộc sống thoải mái và tiện nghi.
Với chất lượng xây dựng đảm bảo và vị trí đắc địa, Grand SunLake hứa hẹn sẽ là một lựa chọn lý tưởng cho những ai đang tìm kiếm một không gian sống đẳng cấp và tiện nghi tại trung tâm Hà Nội.
CHỦ ĐẦU TƯ
Công ty cổ phần thiết bị thủy lợi (Hesco) tọa lạc tại đường Nguyễn Trãi (Hà Nội – Hà Đông), Quận Thanh Xuân, TP .Hà Nội. Công ty áp dụng hệ thống quản lý chất lượng phù hợp với các yêu cầu của tiêu chuẩn: TCVN ISO 9001 – 2008 về các lĩnh vực: Chế tạo, lắp đặt, kết cấu thép, thiết bị nâng hạ và đường ống chuyên ngành thuỷ điện, thuỷ lợi, nông nghiệp. Chuyên nghiệp hóa đội ngũ nhân viên trong công ty,nhằm phục vụ khách hàng tốt nhất. Mở rộng hoạt động kinh doanh với các sản phẩm ngày càng phong phú để đáp ứng nhu cầu của nhiều khách hàng khác nhau. Đầu tư nghiên cứu và phát triển các công trình có tính khả thi cao.
Công ty tập đoàn phát triển nhà và đô thị Thăng Long Việt Nam tọa lạc tại Số 135 đường Trần Phú, Phường Văn Quán, Quận Hà Đông, TP. Hà Nội. Do ông/bà Trịnh Cần Chính làm đại diện pháp luật, được cấp giấy chứng nhận đăng ký kinh doanh ngày 27/01/2010. Công ty có ngành nghề kinh doanh chính là “Kinh doanh bất động sản, quyền sử dụng đất thuộc chủ sở hữu, chủ sử dụng hoặc đi thuê”, do Chi cục Thuế Quận Hà Đông quản lý.
VỊ TRÍ DỰ ÁN GRAND SUNLAKE
Dự án Grand SunLake tọa lạc tại mặt đường Nguyễn Khuyến, phường Văn Quán, Quận Hà Đông. Tọa lạc tại đường đôi Nguyễn Khuyến, Dự án nằm liền kề hồ Văn Quán, sở hữu 2 mặt tiền đường lớn Trần Phú và Nguyễn Khuyến. Cùng với hệ thống tiện ích bao quanh và thiết kế thông minh – hiện đại, đây là là tổ hợp trung tâm thương mại văn phòng và chung cư cao tầng được mong chờ nhất đã chính thức mở bán.
- Vị trí Grand SunLake
Dự án Grand SunLake là nơi có giao thông thuận lợi gần trung tâm hành chính của quận dễ dàng cho việc đi lại của cư dân, một trong những vị trí được coi là “mảnh đất vàng cuối cùng” của quận Hà Đông, cư dân có thể thuận tiện di chuyển tới các khu trung tâm của thành phố.
Cách Ga tàu điện Metro Q. Hà Đông 1.1km
Cách Chợ Hà Đông 1.3km
Cách Bệnh Viện Hà Đông: 1.73km
Cách khu đô thị Xa La: 2km
Cách KĐT Văn Phú: 3km
Cách TT hành chính Quận Hà Đông: 1.2km
Cách Siêu thị Mê Linh Plaza Hà Đông: 1km
Cách Bệnh Viện 103: 1km.
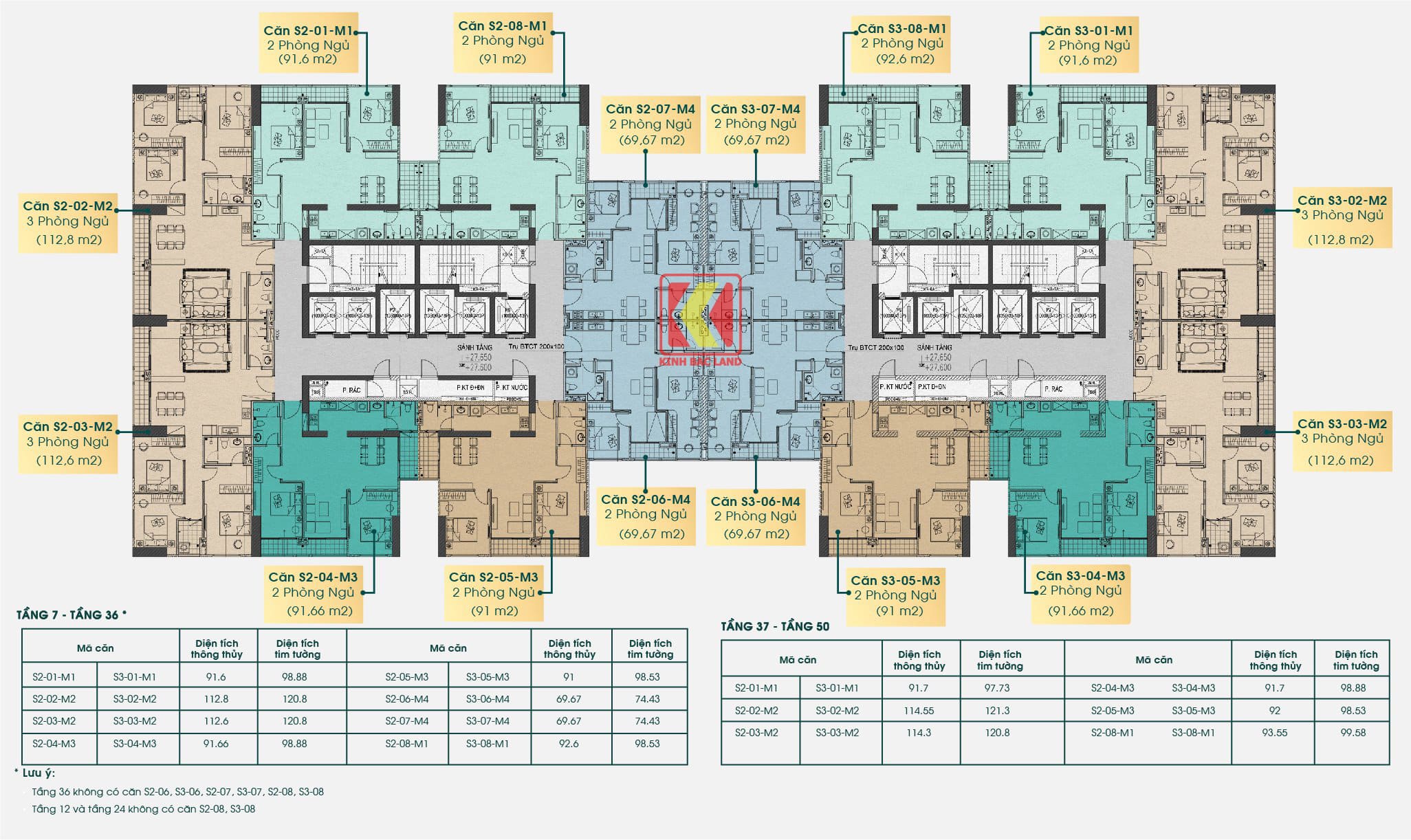
MẶT BẰNG DỰ ÁN GRAND SUNLAKE
Dự án Grand SunLake được thiết kế mang phong cách châu u, là sự kết hợp của những không gian hiện đại với thiết kế tinh tế ấn tượng. Ba tòa tháp chung cư Grand SunLake được thiết kế bởi các kiến trúc sư tài ba, giao hòa độc đáo của nét kiến trúc hiện đại tại trung tâm quận Hà Đông.
Dự án Grand SunLake được xây dựng trên diện tích 21.294,7m2 cung cấp ra thị trường 1.024 căn hộ chung cư cao cấp, có diện tích từ 87-134 m2 thiết kế 2-3 phòng ngủ. Phần lớn những căn hộ có tầm view tuyệt đẹp, ban công, cửa sổ thiết kế thông thoáng đón hướng nắng, hướng gió tự nhiên.
Dự án Grand SunLake đa dạng về mẫu thiết kế căn hộ phù hợp với nhiều nhu cầu của khách hàng. Các căn hộ được thiết kế thông minh, nội thất hiện đại, đảm bảo tất cả các phòng ngủ đều thông thoáng, có ánh sáng tự nhiên, công năng sử dụng cao với rất nhiều không gian độc đáo so với các dự án khác.
- Mặt bằng Grand SunLake
TIỆN ÍCH DỰ ÁN GRAND SUNLAKE
Dự án Grand SunLake là khu chung cư cao cấp với nội chuẩn resort và tiện ích ngoại khu đa dạng, hiện đại. Với thiết kế ấn tượng, tối ưu hóa không gian, sở hữu tầm view độc nhất và ấn tượng với vô vàn tiện ích hiện đại, mang lại chất lượng sống đỉnh cao.
Dự án Grand SunLake được định vị là khu chung cư đẳng cấp nhất vừa hiện đại – sôi động, vừa gần gũi với thiên nhiên. Tiện ích đẳng cấp 5 sao, đặc biệt mang đến cảm xúc tuyệt vời cho cư dân khi trải nghiệm những tiện ích đỉnh cao như: sky bar, bể bơi 4 mùa, đài quan sát, trung tâm thương mại….
Chủ đầu tư dự án Grand SunLake tạo ra một không gian sinh sống thực sự lý tưởng cho các cư dân, xứng đáng là khu căn hộ đáng sống bậc nhất trong khu vực với hệ thống tiện ích nội khu với tiêu chuẩn chung cư cao cấp, hiện đại, đồng bộ cùng những tiện ích như:
Khu trung tâm thương mại, siêu thị 24h
Chuỗi Nhà hàng ẩm thực, nhà hàng Á – Âu
- Tiện ích Grand SunLake
Khu tập gym trong nhà và ngoài trời, dịch vụ Spa & Sauna
Bể bơi bốn mùa
- Hồ bơi Grand SunLake
Khu vườn thượng uyển, tổ hợp cafe ngoài trời, sky bar
- Không gian xanh Grand SunLake
Khu vui chơi trẻ em
Đường dạo bộ lát đá, đài phun nước
Hệ thống quản lý an ninh thông minh.
THIẾT KẾ CĂN HỘ GRAND SUNLAKE
Căn hộ Grand Sunlake tiên phong phát triển dòng căn hộ WOW HOME với diện tích đa dạng từ 70m2, mở ra một không gian sống phóng khoáng, đầy đủ tiện nghi. Một tổ ấm cân bằng – thịnh vượng được kết hợp hài hoà giữa xu hướng hiện đại sang trọng và nét cổ điển tinh tế.
Các căn hộ tại dự án Grand SunLake mang trong mình kiến trúc xây dựng Singapore hiện đại. Thiết kế tối ưu, tiết kiệm diện tích – tạo một không gian gần gũi cho cả gia đình. Tận dụng tối đa ánh sáng tự nhiên đón nắng đón gió từ mọi góc nhà, cung cấp luồng sinh khí tươi mát, trong lành, đầy hưng phấn và thoải mái nhất cho các cư dân tương lai.
- Thiết kế Grand SunLake
Quy mô: 1024 căn hộ
Căn hộ Dual Key diện tích: 72.6m² – 73.1m².
Căn hộ 1 phòng ngủ diện tích : 65.5m².
Căn hộ 2 phòng ngủ diện tích: 69m² – 89.7m² – 99.6m².
Căn hộ 3 phòng ngủ diện tích: 92m² – 95.3m² – 101.6m²- 112m².
Mật độ căn/ sàn: 16 căn/sàn – 12 thang máy
GIÁ BÁN
Hiện tại dự án đang mở bán tòa tháp 50 tầng với tổng 200 căn ( 100 căn lâu dài + 100 căn 50 năm)
– Giá rumor giai đoạn 1 : loại 50 năm 36tr/m2, lâu dài 44tr/m2 bao gồm VAT.
– Số lượng giỏ hàng giai đoạn 1: 200 sản phẩm thuộc các tầng : 7,9,11,12,12A,12B,17,18,22,23,27,30,34,35,37,41,43,49.
CHÍNH SÁCH BÁN HÀNG
Chiết khấu đến 15% GTCH
Ngân hàng hỗ trợ vay 70% GTCH thời gian vay 35 năm
Miễn GỐC + LÃI 18 tháng
Tặng gói nội thất lên đến 168.000.000 VNĐ
Cam kết Thuê lại 1 năm đầu với giá thuê 216.000.000 VNĐ/Năm
Chiết khấu 2 – 7% cho khách mua buôn hoặc nhóm bạn.
PHƯƠNG THỨC THANH TOÁN
Đợt 1: Đóng 25% ký hợp đồng mua bán
Đợt 2: Đóng 15% sau 2 tháng kể từ đợt 1
Đợt 3: Đóng 10% sau 2 tháng kể từ đợt 2
Đợt 4: Đóng 10% sau 2 tháng kể từ đợt 3
Đợt 5: Đóng 10% khi cất nóc dự án
Đợt 6: Đóng 25% + 2% phí bảo trì khi bàn giao nhà
Đợt 7: Đóng 5% khi nhận giấy chứng nhận sở hữu căn hộ.
PHÁP LÝ
Pháp lý rõ ràng, minh bạch
Hình thức sở hữu:
352 căn sở hữu 50 năm
672 căn sở hữu lâu dài
LIÊN HỆ
Phòng kinh doanh dự án Hotline 0909.477.288





